Zawartość
Planuje się obór dla byków z uwzględnieniem liczebności inwentarza. Dodatkowo uwzględniają cechy charakterystyczne rasy, szereg innych niuansów. Aby samodzielnie zbudować budynek gospodarczy, musisz mieć minimalne umiejętności konstrukcyjne, ale najpierw musisz jasno zrozumieć wymagania stodoły.
Wymagania dotyczące obory dla bydła
Stodoła dla byków jest jak dom dla człowieka. Tu trzeba przemyśleć wszystko: ściany, podłogę, sufit, aranżację wnętrz. Zwierzęta spędzają w pomieszczeniach przynajmniej 10 godzin dziennie. Zimą krowy przebywają tu prawie całą dobę. Aby bydło nie odczuwało dyskomfortu, na stodołę nakłada się szereg ważnych wymagań:
- zapewnienie pełnego bezpieczeństwa zwierzętom i opiekującym się nimi osobom;
- niezawodne mocowanie pracy podczas prac konserwacyjnych;
- swobodny dostęp do żywności i napojów, dostępność urządzeń do nagłego przerwania karmienia;
- obecność wolnej przestrzeni, aby zwierzę mogło leżeć, stać, swobodnie wchodzić i wychodzić;
- układ wewnętrzny powinien być przemyślany w taki sposób, aby w przyszłości ograniczyć do minimum liczbę i czas prac konserwacyjnych.
Warto wyjmować byki z obory nawet w zimnych porach roku. Aby zapewnić zwierzętom komfort chodzenia, trzeba zadbać o wybieg. W pobliżu stodoły powstaje ogrodzony teren. Wielkość zależy od liczby zwierząt gospodarskich. Nad zagrodą zadaszenie, umieszczone są ślepe ścianki działowe.
Jak zbudować szopę dla bydła własnymi rękami
Decydując się na budowę obory dla byków, należy wziąć pod uwagę specyfikę struktury rolniczej. Oprócz dorosłych cielęta będą trzymane w oborze i są bardziej kapryśne. W zimnych porach roku będziesz musiał budować indywidualne domy. Najłatwiej jest złożyć je z bel słomy. W domu cielę będzie ciepłe, suche i wygodne.
Nowoczesnym rodzajem obudowy dla młodych zwierząt jest plastikowe pudełko. Dom wykonany jest z wytrzymałego polimeru, jest dobrze zmyty z brudu, można go czyścić środkami dezynfekującymi. Lekki box może być swobodnie przenoszony przez dwie osoby dookoła obory, umieszczony we właściwym miejscu. Dom wyposażony jest w drzwi wejściowe. Jest dozownik suchej paszy i komora na siano. Pod kopułą pudełka ciepło jest doskonale zachowane Cielę czuje się komfortowo.
Budując oborę do trzymania krów, ważne jest, aby przewidzieć, jakie rasy bydła będą tu trzymane w przyszłości. Zwierzęta każdego gatunku różnią się wielkością. Stacjonarna szopa wykonana z bloków lub innego materiału jest uważana za niezawodną. Jeśli mówimy o praktyczności, to na górze wychodzi przesuwana stodoła. Konstrukcja jest wznoszona z tarcz. Materiałem do produkcji przesuwnej stodoły są deski, metalowe rury, profil, drewniany pręt. W przyszłości, jeśli to konieczne, taką szopę można szybko zdemontować i zmontować w celu zmiany rozmiaru.
W oborze będą trzymane byki i jałówki w różnym wieku. Każde zwierzę będzie potrzebowało stoiska. Młode zwierzęta otrzymują mniej materiału filmowego, a dorosłe - więcej miejsca. Wielkość boksu powinna zapewniać swobodny pobyt byków i krów. Zwierzę ma wystarczająco dużo miejsca, aby położyć się do łóżka, swobodnie się obrócić, podejść do karmnika, poidło.Szerokość boksu powinna być wystarczająca, aby osoba mogła swobodnie podejść do krowy, mleka.
Jednak wielkości wolnej przestrzeni nie można mocno przecenić. Oprócz nie oszczędzania miejsca wewnątrz stodoły pojawia się problem niehigienicznych warunków. W zbyt szerokim boksie byki czują się swobodnie. Dowolnie wyjmij jedzenie z korytka i rozrzuć je na podłodze. Występuje problem szybkiego zanieczyszczenia ściółki.
Zobacz wideo, aby uzyskać więcej informacji na temat obór dla byków:
Utwórz plan
Aby zbudować stodołę, musisz opracować plan, stworzyć rysunek z wymiarami. Zaczynają szkicować schemat, gdy już dokładnie określili liczbę trzymanych byków.
Planując budowę obory dla cieląt i dorosłych byków, oprócz sporządzenia rysunków, plan uwzględnia lokalizację budynku gospodarczego na prywatnym podwórku. Optymalne jest usunięcie stodoły 20 m od budynków mieszkalnych, źródeł wody i innych ważnych obiektów. Jeśli nie można spełnić wymagania ze względu na ograniczenie terytorium, odległość zmniejsza się do 15 m.
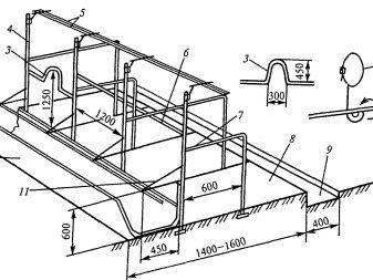
Kiedy problem zostanie rozwiązany z placem budowy stodoły, wracają do rysowania. Przy określaniu wielkości obory jednemu dorosłemu bykowi lub krowie przypisuje się działkę o szerokości 1,1-1,2 m, długości 1,7-2,1 m. W przypadku młodych byków wymagania są różne, co wiąże się z ich aktywną mobilnością. Działka ma szerokość 1,25 m, długość 1,4 m.
Przy obliczaniu wielkości stanowiska brane są pod uwagę podajniki. Muszą zostać usunięte z byków. Para wydobywająca się z nozdrzy przedostanie się do paszy, gdy podajnik znajdzie się blisko. Szybko stanie się wilgotny i spleśniały.
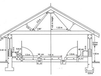
Wysokość stropu obory wyposażona jest w standardzie 2,5 m, co jest wystarczające dla byków i obsługi. Jeśli szopa okazała się mieć 3 m wysokości, nie ma się czym martwić. Gorzej, jeśli stropy obory są zbyt niskie. Byki i personel serwisowy stwarzają dyskomfort: ruch jest ograniczony, wewnątrz obory wzrasta gromadzenie się wilgoci i szkodliwych gazów.
Wiedząc, ile powierzchni potrzeba na jednego byka, wartość mnoży się przez liczbę utrzymywanego inwentarza. Wynik pokaże ogólne wymiary obory, ale bez wybiegu. Jeśli ma być trzymana duża liczba byków, wewnątrz obory wyposaża się obory dwustronne. Pomiędzy rzędami sekcji pozostawiono wolną ścieżkę o szerokości co najmniej 1,5 m. Zalecane jest wykonanie przejścia w szopie poprzez zamontowanie drzwi na końcu budynku.
Wymagane narzędzia i materiały budowlane
Szopa dla byków jest często budowana z materiałów, które są dostępne dla właściciela. Drzewo jest uważane za dobrą opcję. Materiał jest dostępny, niedrogi i ma dobre właściwości termoizolacyjne. Wewnątrz drewnianej szopy byki będą ciepłe i wygodne. Jeśli dostępne są bloki, cegły, materiał ten można wykorzystać do budowy ścian. Dachy szopowe są zwykle zbudowane z niedrogich materiałów. Łupek, papa, tektura falista wystarczą.
Narzędzie do budowy obory dla byków dobierane jest z uwzględnieniem wybranego materiału budowlanego. W każdym razie będziesz potrzebować:
- łopata;
- Mistrz OK;
- młotek;
- Bułgarski;
- widział;
- Śrubokręt.
Jeśli budujesz kamienne ściany do stodoły, wypełnij fundament listwowy, zaleca się posiadanie betoniarki. Bardzo trudno jest ręcznie wbić dużą ilość zaprawy.
Roboty budowlane
Proces budowy stodoły do trzymania byków składa się z kilku etapów, z których każdy obejmuje budowę określonej części budynku: fundamentu, podłogi, ścian, dachu, sufitu. Ostatnim etapem jest wewnętrzna aranżacja obory.
Budowa stodoły zaczyna się od fundamentów.To, jak długo utrzyma się struktura utrzymania byków, zależy od jej siły. Szopy są zwykle umieszczane na podstawie listwowej lub kolumnowej. Ważne jest, aby wziąć pod uwagę, że byki powodują dodatkowe duże obciążenie fundamentu. Jeśli zbudowana zostanie drewniana szopa na 2-3 byki, wystarczy podstawa kolumnowa. Z nazwy jasno wynika, że fundament składa się z pojedynczych betonowych słupów zainstalowanych w pewnej odległości na obwodzie przyszłej stodoły.
Duże szopy, w których ma być przetrzymywane stado byków, a także budynki o kamiennych ścianach ustawiono na fundamencie listwowym. Pod monolityczną podstawą wykopany jest rów, ściany pokryte są pokryciem dachowym. Szalunek jest instalowany na obwodzie. W wykopie rama wzmacniająca jest zawiązana z prętów. Beton wylewa się warstwami. Wskazane jest, aby zakończyć pracę w ciągu jednego dnia, w przeciwnym razie monolityczna podstawa nie zadziała.
Głębokość fundamentu szopy jest położona poniżej punktu sezonowego zamarzania gleby. Jeśli gleba na miejscu jest falująca, podejmuje się dodatkowe środki w celu jej wzmocnienia. Czasami w trudnych obszarach łączy się fundament listwowy z kolumnową podstawą, wylewa się grube warstwy poduszki z tłucznia z piaskiem.
Podłoga w stodole wymaga solidnej podłogi. Byki swoją wagą tworzą imponujący ładunek. Deski szybko się psują. Drewno wyciera się z kopyt. Wilgoć wpływa negatywnie. Zużyte deski zaczynają pękać pod ciężarem byków. Dodatkowo drewno nasycone jest zapachem obornika.
Betonowa podłoga zapewnia idealną wytrzymałość. Powłoka jest odporna na wilgoć, wytrzymuje duży ciężar byków, nie pochłania zapachów odchodów. Wadą jest to, że beton jest zimny. Byki przeziębią się, zranią.
Dla byków optymalne jest tworzenie połączonej podłogi w oborze. Podstawa jest wylewana betonem. Zdejmowane drewniane osłony są układane na górze. W razie potrzeby są wyprowadzane na ulicę, czyszczone, dezynfekowane, suszone. Bykom zapewnia dodatkowe ciepło na podłodze za pomocą legowiska z siana lub słomy.
Ściany stodoły dla małego stada byków są wzniesione z drewna. W przypadku takiego budynku rama jest montowana z pręta, umieszczana na słupowym fundamencie, osłonięta deską. Jeśli ma utrzymać duże stado byków z 20 głów, to do budowy ścian stodoły wybiera się cegły lub bloki.
Ściany wyposażone są w małe kanały wentylacyjne na wysokości 2,5 m od desek podłogowych. Wentylacja latem zapewnia świeże powietrze. Zimą otwory wentylacyjne w oborze są zamknięte, aby oszczędzać ciepło. Do wentylacji montuje się kanały powietrzne z regulowanymi przepustnicami.
Okna montowane są na ścianach z wcięciem 1,2 m od podłogi. Zapewniają światło dzienne w oborze. Zaleca się wyposażyć okna obory w wywietrzniki w celu wentylacji.
Dach montowany jest z dachem jednospadowym lub dwuspadowym. Pierwsza opcja jest prostsza, ale niepraktyczna. Dwuspadowy dach stodoły tworzy strych. Ze względu na dodatkową zamkniętą przestrzeń, zimą lepiej jest ogrzać się wewnątrz stodoły. Strych służy do przechowywania siana i sprzętu roboczego.
Rama dachu stodoły to system krokwi. Na łatach kładzie się hydroizolację i zadaszenie. Z dachu wystrzeliwuje się baldachim pokrywający całą powierzchnię wybiegu do spacerów.
Aranżacja wnętrza stodoły
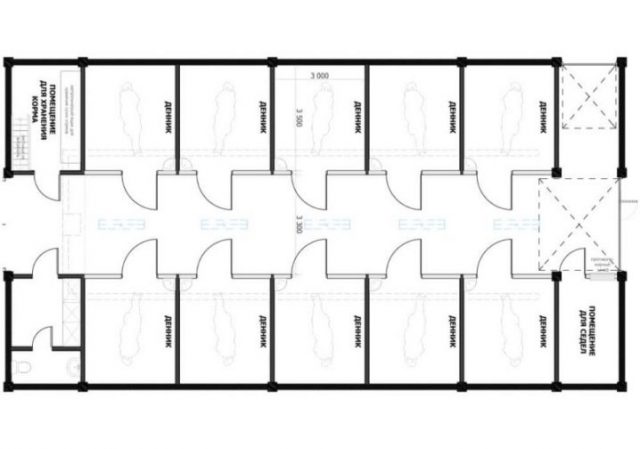
Aranżacja obory rozpoczyna się od zainstalowania zagrody dla każdego byka. Konstrukcja wykonana jest z wytrzymałych materiałów. Zwykle używają metalowych lub betonowych ścianek działowych. Podajnik i poidło zawieszone są na zewnętrznej ścianie straganu. Będą dostępne dla zwierząt i właścicieli do obsługi.
Domowe karmniki wykonane są w postaci pudełek o wysokości przeciwległych boków 30 i 75 cm.Dolna część znajduje się w kierunku stoiska. Zwierzę swobodnie zdobędzie pożywienie, ale nie wyrzuci go na wysoką przeciwną stronę.
Karmidła i poidła nie są umieszczane na podłodze. Optymalne jest podniesienie ich około 10 cm od podłogi. Najlepszą opcją jest osoba pijąca z nieprzerwanym dopływem wody. Można go nawet zainstalować w odległym rogu straganu.
Wniosek
W razie potrzeby obora dla byków może zostać przystosowana do pomieszczenia innych zwierząt lub drobiu. Zmienia się jedynie układ wewnętrzny stodoły, a sam budynek nadal spełnia swoje funkcje funkcjonalne.







